Följ oss

Kontakt

Uthyres

Vikingagränd 2, Mariehamn

Visning:

Enligt överenskommelse

Hyresobjekt

Kontors- och lagerutrymme, 8 euro m², på Vikingagränd 2.

Hyra:

0 € / månad

Våningsyta:

276 m2

Allmänt:

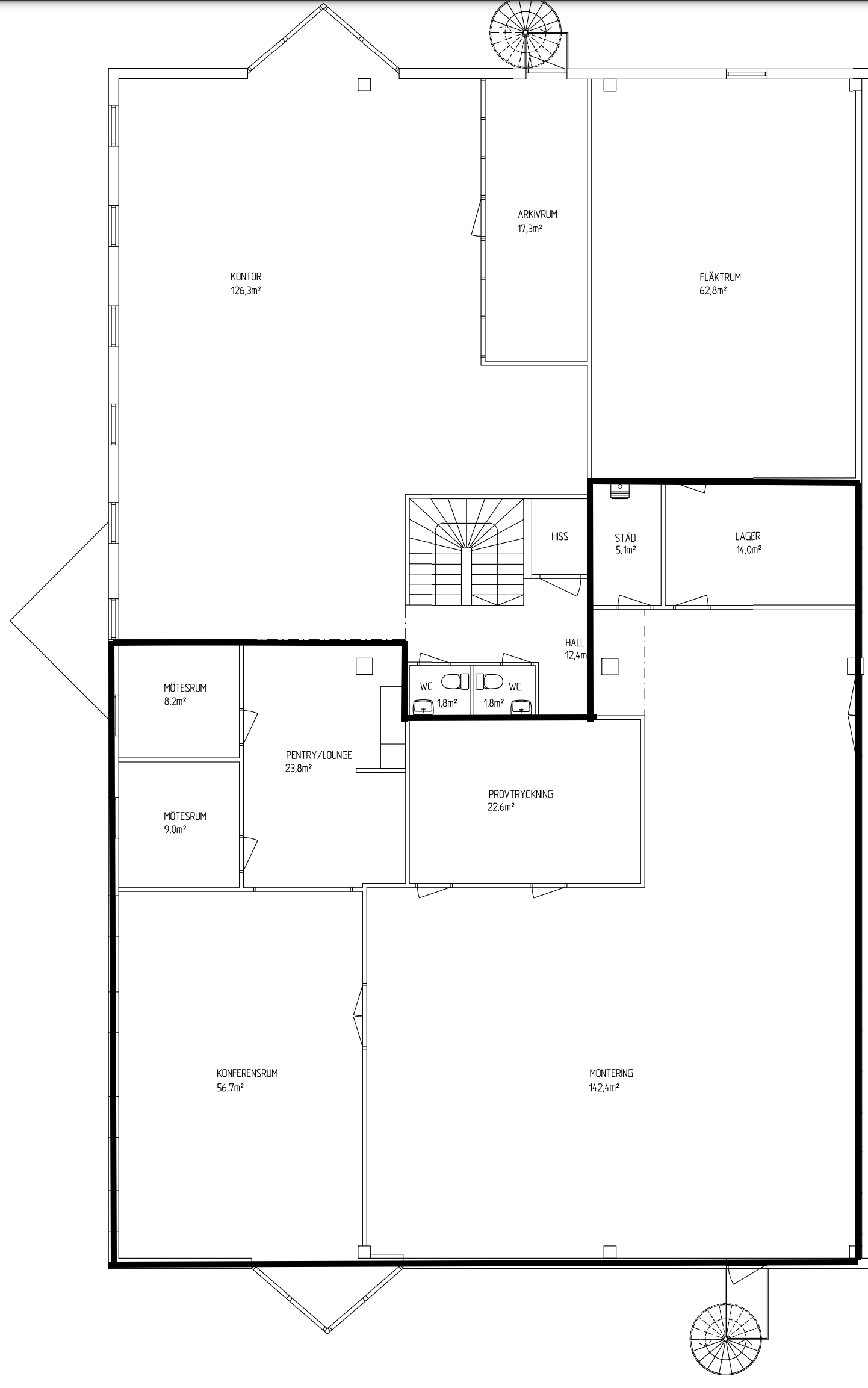
Strax utanför Mariehamns centrum, i Norrböle, erbjuder vi nu till uthyrning detta formbara utrymme för det mellanstora företaget i behov av kontor, eller mindre företaget inom tillverksindustrin. Det finns både kontorsutrymme med sociala utrymmen samt öppen yta som ägaren är positiv till att anpassa enligt dina önskemål. Utrymmena finns på våning två med tillgång till hiss.

Totalt omfattar ytorna 276,7 m² fördelat på:

  • Två kontor på sammanlagt 17,2 m²
  • Pentry 23,8 m²
  • Konferensrum 56,7 m²
  • Öppen kontorsdel/monteringsdel 142,4 m²
  • Två lagerutrymmen på sammanlagt 36,6 m²

Golvet i hallen är slitstark och lämpar sig för olika form av produktion, men är samtidigt lättanpassad till ett öppet kontorslandskap.
Hyra 8 euro m² euro, exkl moms. Värme ingår, kostnad för bruksel tillkommer.
Välkommen och boka en visning!

Planritningar

Beskrivning

Adress: Vikingagränd 2

Kommun: Mariehamn

Våningsyta: 276 m2

Hiss: Ja

Uppvärmning: Värme ingår i hyran.

Vatten & avlopp: Kommunalt V/A

Tillträde: Enligt överenskommelse

Utemiljö: Ett par minuters promenad till Maxinge köpcentrum med butiker och restuaranger.

Bilagor

Tomas Lyyski VD, Fastighetsmäklare AFM, offentligt köpvittne