Följ oss

Kontakt

Till Salu

Björkslingan 4, Jomala

Visning:

Enligt överenskommelse

Nyproduktion parhus

Parhusbyggnad om två bostäder under uppförande av MaSa Bygg AB med möjlig inflytt våren 2026

Pris:

317 000 € - 327 000 €

Våningsyta:

122 m2

Tomtstorlek:

1256 m2

Antal rum:

5 R+K

Byggår:

2025

Björkslingan 4 i Björsby – nybyggt parhus med två generösa bostäder i modern kvalitet

På Björkslingan i populära och växande Jomala uppförs nu ett parhus i äkta lösvirkeskvalitet av MaSa Bygg AB, känd för sin noggrannhet, trygghet och gedigna yrkesstolthet.
Detta projekt representerar det bästa av två världar: modern arkitektur och traditionellt hantverk.

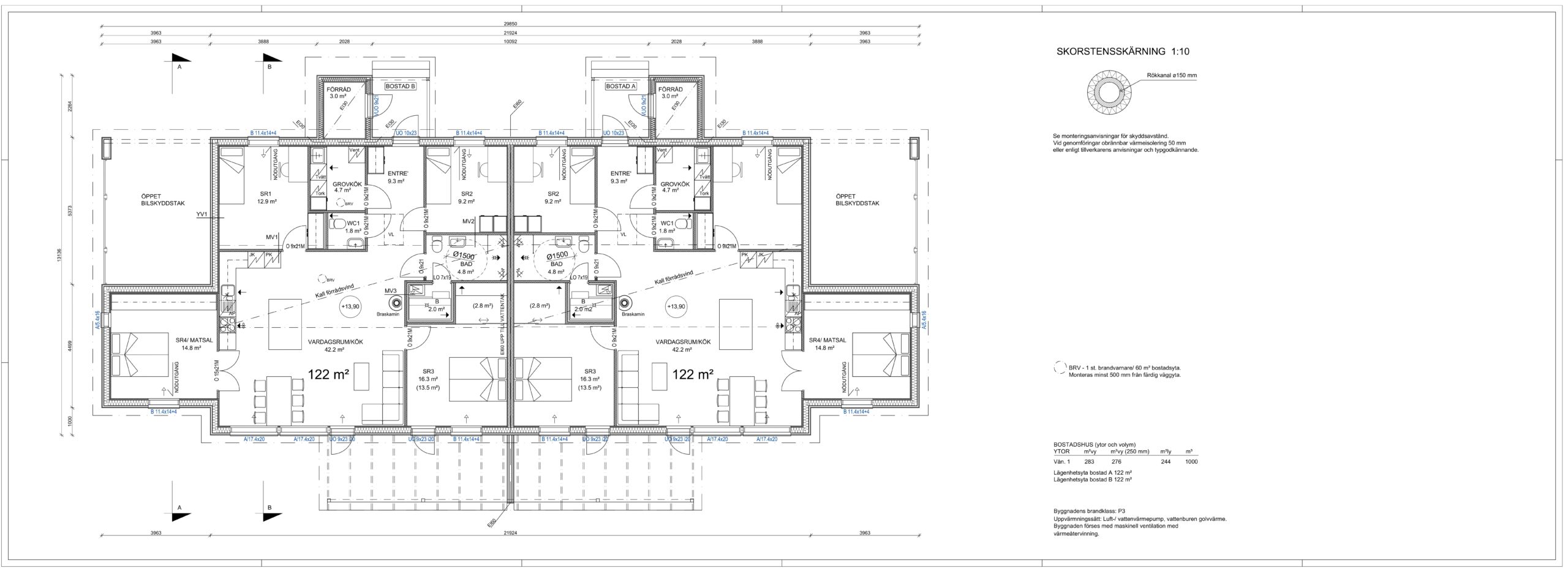
Här byggs två exceptionellt rymliga bostäder om vardera ca 122 m² i fem rum och kök, med genomgående hög standard och yteffektiva lösningar. Ett hem där varje kvadratmeter är genomtänkt och där du som köpare har möjlighet att påverka detaljer och materialval fram till januari 2026.

Bostäderna

Varje bostad erbjuder fyra stora sovrum, varav master bedroom har egen walk-in-closet och utgång till terrass. Den öppna planlösningen mellan kök, matplats och vardagsrum skapar ett naturligt centrum för familj och vänner, med generösa fönsterpartier och rikligt ljusinsläpp.

Köket levereras av Puustelli, utrustat med Siemens-vitvaror och eleganta materialval.
Badrummen är helkaklade, med dubbla duschar, bastu och smakfulla svarta detaljer som ger ett sobert, modernt uttryck.
Utöver detta finns separat gäst-WC samt tvätt- och grovutrymme i anslutning till entrén.

Ett av sovrummen kan vid önskemål öppnas upp mot köket för att skapa en ännu luftigare social yta – ett smart alternativ för den som vill anpassa planlösningen efter livsstil och behov.

Exteriör och tomt

Varje bostad får egen carport och varmförråd, asfalterad infart och färdigställd tomt med gräsyta och tuijahäck som ger både inramning och integritet.

Läget – Björkslingan, Jomala

Björkslingan är ett trivsamt och familjevänligt område i hjärtat av Jomala – en kommun i stark tillväxt med naturen runt hörnet och kort avstånd till både Mariehamn (7 km) och Godby centrum (6 km).
Området erbjuder gångavstånd till lekplats, grönområden och goda kommunikationer – perfekt för familjer som söker lugn utan att ge avkall på tillgänglighet.

Försäljningsförfarande

Försäljningen avser respektive bostad som kvotdel om hälften i fastigheten, med tillhörande bostad och tomtdel enligt besittningsdelning mellan ägarna.
Ett fastighetsbesittningsavtal upprättas i samband med köpet, vilket tydligt reglerar nyttjande- och ansvarsgränser mellan parterna, såsom markområde, byggnadsdelar, drift och underhåll.
Varje delägare disponerar sin bostad och tillhörande tomtdel som självständig enhet, med full rätt till eget bruk och förvaltning inom sin besittningsdel.

Detta upplägg ger trygghet och klarhet i ägandeförhållandet, samtidigt som det möjliggör en mer kostnadseffektiv boendeform med låg drift och tydlig ansvarsfördelning.

Sammanfattning

  • Två nyproducerade bostäder, vardera 5 R+K / 122 m²
  • Inflyttning planerad till våren 2026
  • Fyra sovrum varav master bedroom med walk-in-closet
  • Bastu, dubbla duschar, helkaklade våtutrymmen
  • Kök från Puustelli, vitvaror från Siemens
  • Carport och varmförråd till varje bostad
  • Asfalterad infart, färdig tomt med tuijahäck
  • Möjlighet till egna materialval fram till januari 2026

Ett hem med generositet, finsk precision och trygghet som signum.
Välkommen att uppleva hur ett modernt hem i Björkslingan kan kännas när det byggs med hjärta, hantverk och erfarenhet.

Säljaren förbehåller sig rätten till ändringar, materialval kan avvika.

Planritningar

Beskrivning

Adress: Björkslingan 4

Kommun: Jomala

Våningsyta: 122 m2

Tomtstorlek: 1256 m2

Antal rum: 5 R+K

Byggår: 2025

Bastu: Ja

Nyproduktion: Ja

Teknik: Mekanisk ventilation. Fiber. Tillkommer kostnad för fiberabonnemang.

Uppvärmning: Luft- Vattenvärmepump till vattenburen golvvärme i hela bostaden.

Vatten & avlopp: Kommunalt V/A

Fastighetsbeteckning: 170-402-6-31

Tillträde: Enligt överenskommelse

Övrigt: Köpeobjekten förvärvas såsom kvotdel om hälften (1/2) från fastigheten 170-402-6-31 jämte hälften andel av befintlig parhusbyggnad. Som grund för besittningsrätten upprättas ett avtal om delad besittning mellan köpeobjekt A och B.

Kostnader köpslut: På köpet utgår en överlåtelseskatt om 3 % av köpeskillingen samt kostnad för köpebrev 317 € (inkl. moms) och offentligt bevittnande vid fastighetsköp 143 €.

Tomas Lyyski VD, Fastighetsmäklare AFM, offentligt köpvittne

Anmäl intresse

Namn(Required)
This field is hidden when viewing the form
This field is hidden when viewing the form
This field is hidden when viewing the form